Obec Dobřejovice
Na Návsi 26
251 01 Dobřejovice
IČO: 00240141
DIČ: CZ00240141
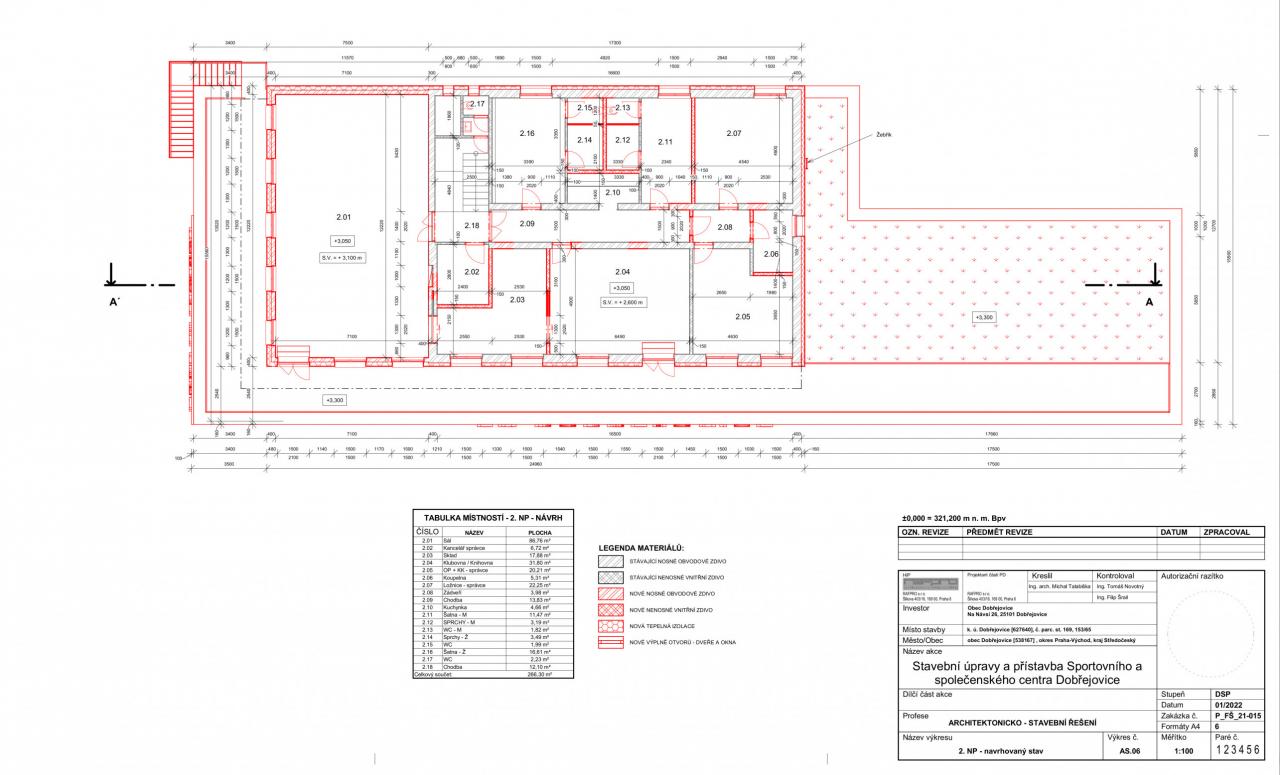
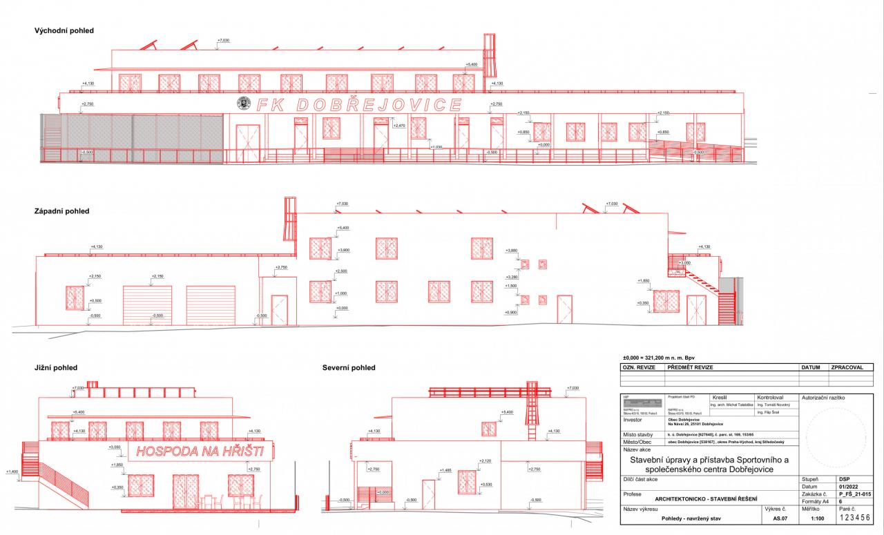
Cílem projektu je rekonstrukce budovy u dobřejovického fotbalového hřiště a dostavba nové části s hospodou, cvičícím sálem a prostory pro další aktivity. Stavba je energeticky úsporná a využívá obnovitelné zdroje energie.
V rámci stavby také došlo k energetickým úsporám díky komplexní renovaci objektu spočívající v zateplení, výměně zdroje tepla a teplé vody a instalaci fotovoltaické elektrárny i vzduchotechnických jednotek s rekuperací.
Stránky Sportovního a společenského centra Dobřejovice
Projekt: „Stavební úpravy a přístavba Sportovního a společenského centra Dobřejovice - energetické úspory“ byl podpořen částkou 10 272 626 Kč z Operačního programu Životní prostředí
Projekt s názvem Projektová dokumentace "Stavební úpravy a přístavba Sportovního aspolečenského centra Dobřejovice" byl podpořen částkou 200 000 Kč za Středočeského Fondu podpory včasné přípravy projektů EU 2021+ a NIP.
Studie ke stažení:
Architektonická studie bude projednána na únorovém zasedání zastupitelstva. Ihned po jejím schválení budou zahájeny práce na zpracování projektové dokumentace pro co nejrychlejší získání stavebního povolení.
Uveřejněné články:
Dobřejovický Zpravodaj 2022_04_Bývalá ubytovna a hospoda slouží uprchlíkům
| Po | Út | St | Čt | Pá | So | Ne |
|---|---|---|---|---|---|---|
| 26 | 27 | 28 | 29 | 30 | 31 | 1 |
| 2 | 3 | 4 | 5 | 6 | 7 | 8 |
| 9 | 10 | 11 | 12 | 13 |
14
1
|
15 |
| 16 | 17 | 18 | 19 | 20 | 21 | 22 |
| 23 | 24 | 25 | 26 | 27 | 28 | 1 |

Více informací z měrného bodu naleznete na serveru hladiny.cz
UPOZORNĚNÍ: Veškerá data jsou bez právní záruky.